上海金融街中心由丰泰地产投资与金融街控股携手打造,集5A超甲级办公、商务、文化、娱乐、休闲设施及露天绿化空间于一身,总建筑面积约49万平方米,是静安新核心商务区内最大体量的商办地标综合体项目。

上海金融街中心一期及二期鸟瞰图
静安新核心商圈
纵观上海近三十年商务发展史,静安区始终以开拓者的姿态,参与到上海迈向现代化国际大都会的时代进程中。随着上海2035城市规划,静安传统核心区不断对外扩张,进一步加强静安新核心商圈商务实力。同时,立足“十三五”规划与静安区明确提出建设的“一轴三带”大战略,打造一条贯通南北、共享互融的复合发展轴。上海金融街中心正位于中轴位置,承接带动南北商务核心发展的重要任务,激发静安商务发展新活力。

三线汇聚的交通枢纽
上海金融街中心一期坐落于静安新核心地段,毗邻人民广场、静安寺、陆家嘴、淮海路、新天地等众多商圈。项目正对上海火车站,连接轨道交通1、3、4号线上海火车站,便捷通达全市核心CBD区域。车程约40至50分钟即可至虹桥交通枢纽及浦东国际机场。


办公楼概况
上海金融街中心将分两期落成,一期(1FS)由香港丰泰运作;二期(2FS)将在1FS交付后一年之后落成,由金融街运作。1FS总体量约71,000平方米,涵盖4栋办公楼,共计64,000平方米办公面积。另配套约7,000平方米的精致餐饮零售空间——ONE AVENUE,将设有露天咖啡厅、中高端特色餐厅及健身美容配套服务。同时项目着力打造逾10,000平方米的大型绿化空间——ONE PARK,缔造核心地段难能可贵的绿色商务地标,使得入驻的客户能享受大型的绿色空间视野及环境,在广阔空间交织工作、生活及娱乐,提供恬静休闲体验。





东座大堂效果图
1FS的项目设计由国际团队操刀,建筑设计由芝加哥Goettsch Partners (GP)主理,室內设计则由新加坡Brewin Design Office打造,楼层采用全景落地玻璃幕墙,室外采光通透,视野开阔,与户外景观设计融为一体。办公楼大堂巧妙融合高级大理石和钢材材质,配置全景大落地玻璃幕墙,宽敞大气。办公楼另设独立行政电梯,备有两面大堂入口及上下车专区,为客户提供尊祟体验。项目已获得美国LEED金级预认证,以及国家绿色建筑二星预认证,预计将于2020年第一季度竣工。

东座高层办公楼效果图
标准平面图示意

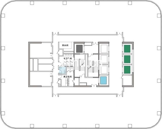
南座 – 低区标准层平面图

东座 – 低区标准层平面图
技术参数
| 南座 | 东座 | |
| 项目地址 | 上海市静安区中兴路1509及1539号 | |
| 楼层数(名义楼层) | 3层 – 21 层 | |
| 办公楼建筑面积 | 约26,691平方米 | 约33,653平方米 |
| 标准层建筑面积 | 约1,600-1,700平方米 | 约2,000-2,100平方米 |
| 标准层净高 | 2.90米 | |
| 架空地板高度 | 100毫米 | |
| 楼板承重 | 3.0KN/平方米 | |
| 整层得房率 | 约75% | |
| 空调系统 | VAV变风量全空气系统并设置加湿装置 | |
| 车位数目 | 约170个 | 约220个 |
| 电梯系统 | 6台客梯,1台行政电梯,1台货梯 | 8台客梯,1台行政电梯,1台货梯 |
加入讨论