
项目改造前
ENJOY趣办@阳光·张江NEO原名盖臣商务中心,建筑外立面杂乱,南北两楼风格迥异,为两栋独立建筑及围合式内庭院构成的园区。项目坐落于内环与中环高架路之间、中国硅谷——张江高科技产业园的核心位置。位于上海浦东新区蔡伦路103号,地铁13号线张江路站,步行8分钟即达。
该项目占地面积6,458m²,总建筑面积8,940m²,北楼6层,南楼4层,设置约400m²共享办公空间,另辅以约4000m²的绿色庭院,满足租户休闲社交需求。

项目区位图
作为张江高科技园区的核心项目,ENJOY趣办@阳光·张江NEO属于典型的核心区域存量资产,建筑外形老旧、基础设施陈旧,层高、结构、机电等均不能满足现代企业的需求。
如何打破现状陈旧设计,从吵杂的周围环境中脱颖而出,融合上海融汇创新的开放精神,将传统办公模式与未来办公相结合,打造一个具有“场景性、互动性、开放性”的富有生命力的办公空间,成为阳光·张江NEO存量焕新的重要考量。

园区整体改造效果图
改造后园区更加层次化,外部采用统一科技线条元素,设计成更具现代感、科技感和自然生态美感的一朵“云”,缓冲人们常感觉到的过重的工业气息,使艺术美与科技感兼具。
内部设计则依据建筑现状,打造舒适空阔兼具私密的多功能体验空间。
因此趣办用开放式的办公空间重塑传统的工作日常:开阔区域进行集中讨论,围合的空间创造偶遇与快速协作,格子空间以便集中精力、促发深度思考,更精准地把握高效办公的刚需与日常心理感官的平衡。

北楼改造效果图

南楼改造效果图

大堂空间效果图

样板间效果图
改造升级后,ENJOY趣办@阳光·张江NEO将成为张江特色产业创意办公园区,与张江片区传统的工厂、研发办公楼和甲级办公楼形成差异化竞争优势。
南楼(可办理生物医药类环评)

南楼平面图
建筑面积 | 4310.57m²
建筑层数 | 4层
建筑层高 | 17m
办公净高 | 3.9m
交付标准 | 空调、白墙、裸顶
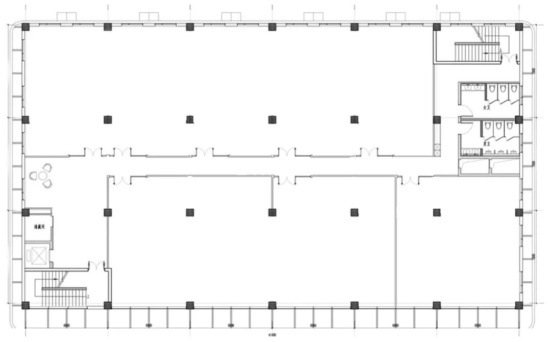
北楼(办公)

北楼标准层平面图
建筑面积 | 4630.28m²
建筑层数 | 西侧4层,东侧6层
办公面积 | 4607m²
建筑高度 | 19m
标准层面积 | 西侧640m²,东侧383m²
办公区净高 | 西侧3.9m,东侧2.6m
交付标准 | 定制装修
加入讨论