
以巴黎、里斯本和上海为实践地的Jacques Ferrier事务所与Sensual City Studio合作将上海徐家汇的一座旧建筑变成了城市中的新地标。不同于寻常的“办公室加停车场”,该项目为重新探讨其周边城区的环境创造了契机。
▼建筑外观

在上海最繁忙的十字路口,这座位于高架桥上方的建筑成为了一处新的“城市绿洲”,人们可以从这里俯瞰动态的城市场景。T20大厦通过一系列公共步行绿道将办公室、市政单位、商业及文化空间结合起来,在繁忙的街道上空营造出远离城市喧嚣的宁静空间。
▼繁忙十字路口上空的“城市绿洲”

设计探索了如何通过建筑来激活更广泛的城市环境,将人行道和桥梁建立在交通枢纽上方,使其成为建筑的一部分延伸,并以此更新了当地的基础设施。在经过大量分析研究之后,Jacques Ferrier事务所的创始人Jacques Ferrier和Sensual City Studio的联合创始人Pauline Marchetti确定了在十字路口上方设立相互连通的人行步道的必要性,并将其与大厦的停车场进行整合。
▼人行道和桥梁成为建筑的延伸

大厦包含两层地下商业空间,其中一层通过走廊空间与Metro City商场相连。大厦的1层和2层包含数百平方米的社区空间。3-7层是公共停车场,以连续的螺旋形态展开,为该区域的企业和办公人员提供服务。8层和9层是共享办公空间,围绕着一个宽阔的花园分布,此外还包含游客接待中心、餐厅、会议室、礼堂和休闲聚会空间等。10至15层提供高效且人性化的办公空间。顶部的两个楼层是文化中心的所在地,看上去如同“漂浮”在城区的天际线上空。
▼北立面图

▼公共停车场连续的螺旋形态展开

▼街道近景

T20以建筑的身份彰显了其所在场地的动态与活力:行人通过桥梁和步道与城市以及便利设施与商业空间所在的首层和二层空间相连,对整个区域起到了激活作用。停车场的绿化使其成为城市中的葱郁绿洲,人们可以从主要的公共空间看到这座独特的“悬空花园”。
▼建筑对整个区域起到了激活作用

▼停车场的绿化使其成为城市中的葱郁绿洲

这种整合式的设计方法将自然环境引入了高密度的城区,悬浮花园和贯穿建筑的绿色植物将有助于缓解该区域不可避免的污染问题。多层次的空间实现了动态与静态的巧妙结合,在城市中形成一处具有“治愈”效果的宜人环境。
▼建筑立面

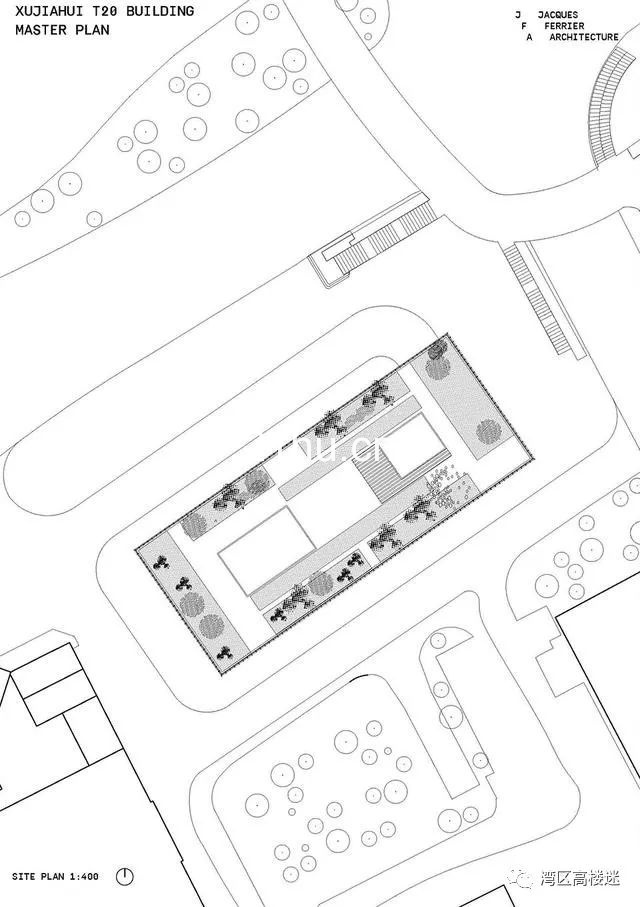
▼场地平面图

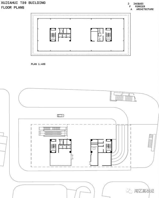
▼平面图

▼北立面图

▼东立面图

▼剖面图A-A

项目标签
设计公司:Sensual City Studio法国雅克·费尔叶建筑事务所
位置:中国
类型:建筑
材料:混凝土 幕墙
标签:Shanghai 上海
分类:交通建筑 停车场 办公室 办公建筑 商业建筑 综合体 购物中心
来源:贝克街的札记 2019-06-19 14:50:43
加入讨论